









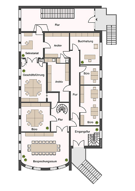
Es handelt sich hier um ein Bürogebäude über drei Etagen: Erdgeschoss ca. 250 m², Obergeschoss ca. 60 m², Untergeschoss (Sockelgeschoss) ca. 250 m².
Das Büro bietet im Erdgeschoss und im Obergeschoss mit einer lichten Höhe von ca. 2,70 m sowie im Untergeschoss mit eine lichte Höhe von 3,00 m eine Nutzung (auch teilbar) als Praxis-, Schulungs- und Lager-/Ausstellungsflächen. Zahlreiche Stellplätze befinden sich im Hofbereich und können bei Bedarf angemietet werden.
Ein Energieausweis ist in Bearbeitung.
Wenn wir Ihr Interesse geweckt haben freuen wir uns, Sie bei einer persönlichen Besichtigung begrüßen zu dürfen.
Die Immobilie liegt im Mauritzviertel, welches Stadtteil des münsteraner Zentrums ist. Dieses Viertel bietet eine komplette Infrastruktur. Ein guter Branchenmix von Einzelhandelsgeschäften, Lebensmittel- und Drogeriemärkten, Büros und Praxen, Apotheken etc. in unmittelbarer Nähe bildet ein sehr belebtes Umfeld. Sie erreichen mit dem Fahrrad oder Auto schnell und bequem die Innenstadt. Des Weiteren wird der Standort durch Bushaltestellen in direkter Umgebung mit Anbindung an den Hauptbahnhof Münster begünstigt.






Diese Immobilie ist bereits vermietet. Wenn Sie eine ähnliche Immobilie suchen, stöbern Sie gerne in unseren aktuellen Angeboten.