













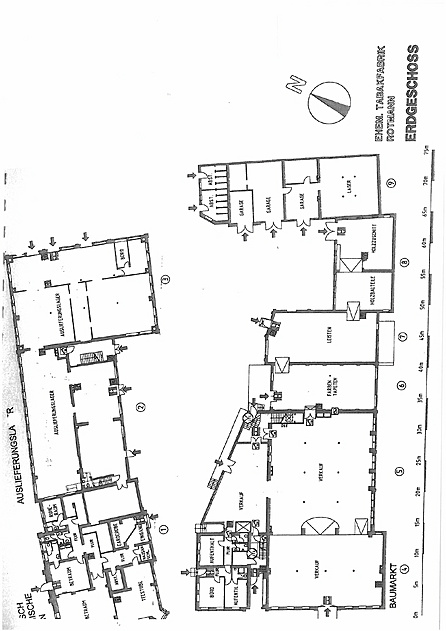
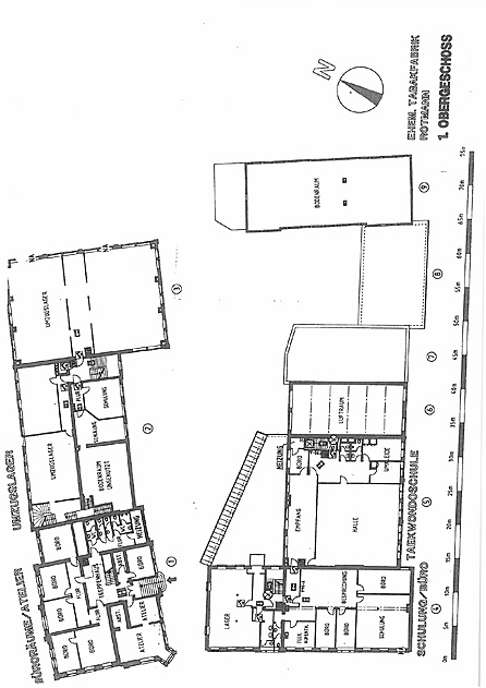
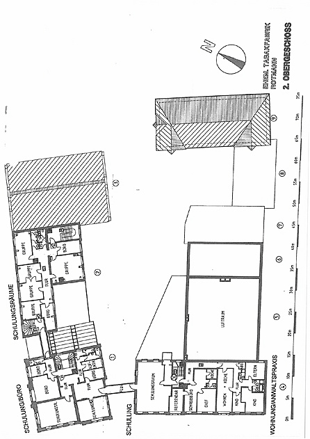
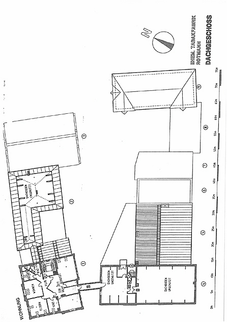
Es handelt sich um ein denkmalgeschütztes Gebäudeensemble der ehemaligen Tabakfabrik Rotmann, das im Laufe seines Bestehens (ca. 1817-heute) unterschiedliche Nutzungen durchlief. Die aus verschiedenen Bauzeiten stammenden Backsteinbauten wurden gemäß der unterschiedlichen Nutzungen in Büro-, Lager-, Verkaufsflächen, Wohnungen und Ateliers umgebaut. Das Grundstück ist 6.803 m² groß. Ca. 3.000 m² sind überbaut. Die Hof-/Freiflächen sind überwiegend gepflastert. Die gesamte Nutzfläche umfasst derzeit 5.566 m² inkl.eine Wohnung mit ca. 90 m², wobei die gewerbliche Fläche im EG und 1.OG 5.476 m² beträgt. Das UG könnte mit ca. 756 m² als Lagerhalle dienen.
Die Immobilie befindet sich in der Kreisstadt Steinfurt-Burgsteinfurt (ca. 32.000 Einwohner). Etwa 30 km nordwestlich von Münster und etwa 400 m nördlich vom Stadtkern "Burgsteinfurt" gelegen. Steinfurt ist über die B 54 an die A1 und A31 angebunden und hat Bahnanschluss nach Münster, Gronau und Enschede (NL). 25 km östlich von Steinfurt befindet sich der Flughafen "Münster/Osnabrück".










Diese Immobilie ist bereits verkauft. Wenn Sie eine ähnliche Immobilie suchen, stöbern Sie gerne in unseren aktuellen Angeboten.