





Ein Haus für Menschen mit Anspruch
Diese neu errichtete Doppelhaushälfte auf der Sentruper Höhe verbindet moderne Architektur, hochwertige Ausstattung und eine der begehrtesten Wohnlagen Münsters.
Auf drei Wohnebenen plus Teilkeller entsteht ein Zuhause, das Familien langfristig Raum gibt und zugleich repräsentativ wirkt.
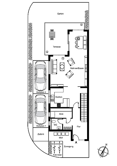
Der offen gestaltete Wohn-, Ess- und Kochbereich mit rund 53,8 m² bildet das Herzstück des Hauses. Großzügige Fensterflächen schaffen eine helle, ruhige Atmosphäre und öffnen den Blick auf die großzügige Terrasse sowie den Garten.
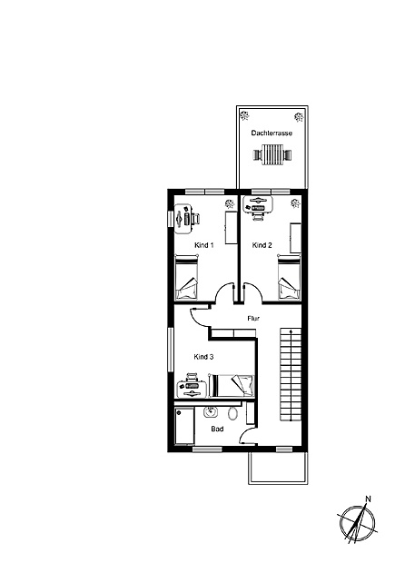
Im Obergeschoss befinden sich drei vielseitig nutzbare Zimmer sowie ein hochwertiges Tageslichtbad mit bodengleicher Dusche. Ein Zimmer bietet Zugang zur Dachterrasse.
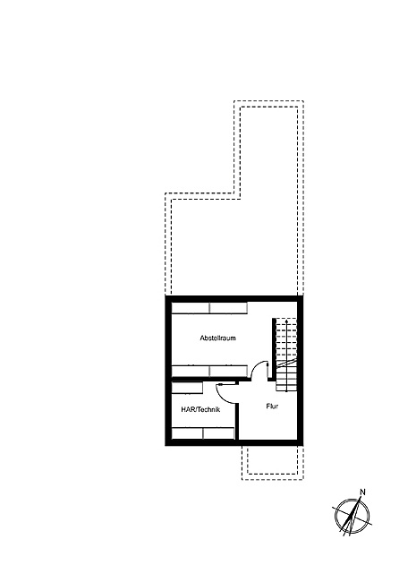
Das Dachgeschoss schafft einen privaten Elternbereich mit Schlafzimmer, weiterem Zimmer und einem stilvollen Bad mit Wanne.
Auch wirtschaftlich eine kluge Entscheidung
Die reinen Neubaukosten steigen bereits wieder.
Ein vergleichbarer Neubau in dieser Lage wäre bei weiter steigenden Bau- und Grundstückskosten in Zukunft deutlich teurer.
Sie erwerben hier einen bereits fertiggestellten Neubau in einer Lage, in der neue Angebote kaum verfügbar sind.
Objektdaten
Wohnfläche: ca. 177 m²
Grundstück: ca. 246 m²
Terrasse: ca. 29,70 m²
Zimmer: 6
Schlafzimmer: 5
Bäder: 2
Gäste-WC: ja
Stellplätze: 2
Heizung: Luftwärmepumpe
Energieträger: Strom
Baujahr: 2025/2026
Bezug: Juni 2026
Provision: 2,975 % inkl. MwSt. gem. § 656 BGB
Kaufpreis: auf Anfrage
Besichtigung
Gern präsentieren wir Ihnen dieses besondere Haus persönlich.
Der Energieausweis ist in Arbeit
Alle Angaben ohne Gewähr · Irrtümer vorbehalten ·
Diese Immobilie liegt in einer Wohnlage, die Ruhe und Nähe zu zentralen Zielen verbindet. Der Aasee und der Zoo befinden sich in unmittelbarer Umgebung. Der Domplatz ist mit dem Fahrrad in etwa zehn Minuten erreichbar. Eine Haltestelle des öffentlichen Nahverkehrs liegt rund sechs Minuten zu Fuß entfernt und bietet eine schnelle Anbindung in alle Stadtbereiche.
Münster verbindet eine lebendige Hochschulkultur mit einer historischen Altstadt und weitläufigen Grünflächen. Die Lage ermöglicht eine Kombination aus einem geschützten Wohnumfeld und der unmittelbaren Nähe zu wichtigen Einrichtungen, Einkaufsmöglichkeiten und Freizeitangeboten. Damit eignet sich das Umfeld für Familien und Berufstätige, die eine ruhige Wohnlage mit guter Erreichbarkeit schätzen.







