

Manchmal gibt es Orte, die alles vereinen: die Nähe zur Stadt und die Ruhe eines versteckten Rückzugsortes. Dieses charmante Stadthaus im begehrten Südviertel von Münster ist genau so ein Ort.
Ein Juwel mit Geschichte
Erbaut im frühen 20. Jahrhundert, erzählt dieses Haus Geschichten aus vergangenen Zeiten – und ist dabei mit viel Liebe in die Gegenwart geführt worden. Die kunstvollen Bleiglasfenster zaubern bunte Lichtspiele ins großzügige Treppenhaus, während das original erhaltene Fischgrätparkett in der Erdgeschoss- und Obergeschosswohnung eine warme, gemütliche Atmosphäre schafft.
Drei Wohneinheiten, ein Gefühl von Zuhause
Die Erdgeschosswohnung ist ein echtes Highlight. Mit 109 m² Wohnfläche, einer modernen Sanierung aus 2022 und einer ebenerdigen Dusche verbindet sie historischen Charme mit modernem Wohnkomfort. Durch die großen Fenster strömt das Licht auf das edle Parkett, während der Blick hinaus in den grünen Stadtgarten führt – ein verstecktes Paradies mitten in der Stadt.
Im Obergeschoss erwartet Sie eine 104 m² große Wohlfühloase mit einer großzügigen Wohndiele, die als Esszimmer dient, und einem Zugang zur 20 m² großen Dachterrasse in Südwest-Ausrichtung.
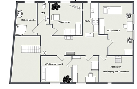
Die charmante Dachgeschosswohnung mit 56 m² bietet Raum für neue Ideen – perfekt für junge Paare, eine WG oder als zusätzlicher Wohnraum für die Familie.
Alle drei Wohneinheiten sind vermietet und bieten Ihnen eine beständige Einnahmequelle. Die derzeitige Mieteinnahme spiegelt den aktuellen Stand wider, doch das wahre Potenzial dieses Hauses liegt in seiner unvergleichlichen Lage und der kontinuierlichen Wertsteigerung und der dadurch problemlosen Vermietung.
Dieses Stadthaus ist mehr als nur eine Immobilie – es ist ein Zuhause mit Seele. Hier lebt Geschichte, hier entsteht Zukunft. Die ruhige Seitenstraße, die Nähe zum Ludgerikreisel, die fußläufige Erreichbarkeit des Hauptbahnhofs (nur 600 m!) – all das macht es zu einem der begehrtesten Wohnorte Münsters.
Ein Zuhause für Generationen – sichern Sie sich dieses einzigartige Stück Münster!








Diese Immobilie ist bereits verkauft. Wenn Sie eine ähnliche Immobilie suchen, stöbern Sie gerne in unseren aktuellen Angeboten.