

Moderne Architektur!
Direkt am historischen Hafenbecken gelegen bildet das fünfgeschossige, mit einer modernen Holzaluminiumfassade umfasste Bürogebäude durch seine Grundrissform eine optimale Symbiose von flexibler Grundrissgestaltung und klarer Ausdrucksform. Der große Gebäudeeinschnitt auf der Hafenseite bietet wunderbare Ausblicke auf das Wasser und bringt die Einmaligkeit des Ortes bis tief in das Gebäudeinnere.
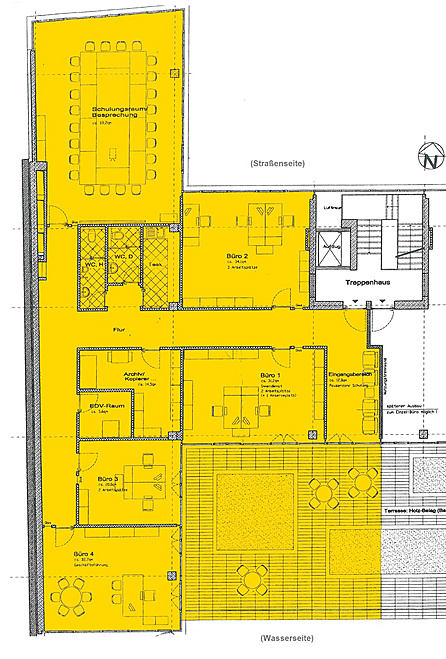
Die Büroeinheit befindet sich im 1. OG des Gebäudes und kann sowohl über das großzügige, offene Treppenhaus als auch über einen transparenten Glasaufzug erreicht werden. Raumhohe Fenster- und Glaselemente mit Holzoberflächen verströmen eine angenehme Wärme. Derzeit werden über einen Flur vier - auch teilbare - Großraumbüros für zwei bis vier Arbeitsplätze, ein Konferrenzraum, ein EDV-Raum, ein Archivraum, eine Damen- und Herrentoilettenanlage sowie eine Küche mit hochwertiger Einrichtung erschlossen. Der Flur bietet im Eingang einen Empfangsbereich, der auch als Büro erstellt werden kann. Zur Hafenseite gelegen befindet sich eine begehbare Südterrasse.
Bei Bedarf kann der Grundriss den Wünschen des Mieters angepasst werden: Büroraumtiefen von 4,8 m bis zu 6,8 m und die Breitenunterteilung im optimalen Büroachsmaß von ca. 1,35 m ermöglichen in sehr problemloser und wirtschaftlicher Weise die individuelle Erstellung von Standardzellen- und großzügigen Mehrpersonenbüros, Team- und Open-Space-Flächen sowie großräumigen Besprechungs- und Seminarräumen. Die bereits vorgerüsteten technischen Details wie z. B. die fensterbezogenen Einzelsteuerungen des außen liegenden Sonnenschutzes und der Hohlraumboden ermöglichen praktisch jede gewünschte Installation für Elektro, EDV, etc.
Parkplätze befinden sich u.a. in der zweigeschossigen auch mit dem Aufzug erreichbaren Tiefgarage mit ca. 60 Stellplätzen.
Ein Energieausweis ist bereits in Bearbeitung.
Wir hoffen, Ihr Interesse geweckt zu haben und freuen uns, Sie für eine persönliche Besichtigung begrüßen zu dürfen.
Hochwertig und elegant!
Folgende Ausstattung ist gegeben:
Änderungswünsche sind kostenpflichtig.
Arbeiten am Wasser!
Einen besonderen Reiz in der Domstadt bietet der Münsteraner Hafen . Mit der zunehmenden Entwicklung des Kreativkais und der Neuerschließung des Mittelhafens etabliert sich dieser Standort nach und nach als einer der führeden Geschäftsadressen in Münster. Die umgebauten Speicherhäuser und die moderne Architektur, welche Restaurants, Büros und Kultur beherbergen, sorgen für ein abwechslungsreiches Angebot. Geschäfte des täglichen Bedarfs befinden sich in fußläufiger Entfernung und bilden eine gewachsene Infrastruktur.
Bushaltestellen in unmittelbarer Nähe und der etwa 850 m entfernt gelegene Hauptbahnhof bieten neben einer schnellen überregionalen Anbindung über die B51 an die Autobahn A1/A43 eine gute regionale und überregionale Verkehrsanbindung.

