vermietet
48155Münster
Objekt-Nr.
2539

Exquisiter Blick übers Hansaviertel!!!

Flächen & Zimmer

Wohnfläche
45.000.000 m²
Zimmer
2 Zimmer
Schlafzimmer
1 Zimmer
Badezimmer
1 Zimmer
Baujahr
1996
Zustand
gepflegt
Anzahl Etagen
5
Verfügbar ab
01.03.2012
Einbauküche
ja

Diese schicke Wohnung befindet sich im Dachgeschoss (4.OG) eines gepflegten Wohn- und Geschäftshaus. Das Haus wurde 1996 erbaut. Eine optimale Raumaufteilung bietet eine hervorragende Wohnqualität. Der schöne Schnitt mit dem weiten Blick übers Hansaviertel vermittelt ein schickes Ambiente.


Ausstattung

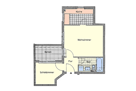
Das Appartement ist in Wohnzimmer mit Essbereich, separates Schlafzimmer, Küche, Bad und Diele aufgeteilt. Ein Balkon mit Blick übers Hansaviertel bietet Platz für entspannte Stunden im Freien. Die gesamte Wohnung ist modern ausgestattet: Eine Kombination aus Echtholzparkett und hellen Fliesen schaffen eine angenehme Atmosphäre. Das Bad sowie die Küche sind gefliest. Die Küche ist mit einer Einbauküche eingerichtet (Backofen, Herd, Mikrowelle, Spülmaschine) und bietet alles, was zum Kochen benötigt wird. Das Bad ist mit modernen Sanitärobjekten (Waschmaschinenanschluss, Dusch-/Badewannenkombination) ausgestattet und lässt den Tag frisch starten. Die Heizung und das Warmwasser werden über eine Etagengasheizung geliefert und Sie sind somit unabhängig vom Verbrauchsverhalten der anderen Nutzer. Kabelfernsehen ist zur Nutzung inbegriffen. Ein Kellerraum und ein Tiefgaragenstellplatz gehören fest zur Wohnung.


Lage

Die zentrale Lage ermöglicht Ihnen das Erreichen des Bahnhofs und der Innenstadt in ca. drei bzw. fünf Fahrradminuten. Viele verschiedene Einkaufsläden, Apotheken, Ärzte und noch vieles mehr bilden eine sehr gute Infrastruktur. Der in unmittelbarer Nähe befindliche Hafen - auch Kreativkai genannt - bietet Ihnen mit seinen geschmacklich vielfältigen Restaurants direkt am Wasser viel Abwechselung. Für Freizeitaktivitäten wie an einem sonnigen Herbsttag spazieren gehen oder joggen, ist der nur wenige Meter entfernt gelegene Kanal abseits der Restaurantmeile sehr gut geeignet.


Diese Immobilie ist bereits vermietet. Wenn Sie eine ähnliche Immobilie suchen, stöbern Sie gerne in unseren aktuellen Angeboten.

Daten­schutz­ein­stel­lun­gen

Diese Webseite nutzt externe Medien, wie z.B. Karten und Videos, und externe Analyse-/Marketingwerkzeuge, wie z.B. etracker, welche alle dazu genutzt werden können, Daten über Ihr Verhalten zu sammeln. Dabei werden auch Cookies gesetzt. Die Einwilligung zur Nutzung der Cookies & Erweiterungen können Sie jederzeit anpassen bzw. widerrufen.

Eine Erklärung zur Funktionsweise unserer Datenschutzeinstellungen und eine Übersicht zu den verwendeten externen Komponenten finden Sie in unserer Datenschutzinformationen.

Welche optionalen Cookies bzw. Erweiterungen möchten Sie erlauben?