











Ruhig und trotzdem stadtnah! Die Architektur des 1964 erbauten Einfamilienhauses im Bungalowstil ist in massiver Bauweise erstellt worden. Die Grundrissgestaltung ist zudem wohl durchdacht und familienfreundlich aufgeteilt.
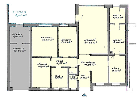
Insgesamt verfügt das Haus im Erdgeschoß über ca. 98 m² Wohnfläche, die sich in 5 Zimmer, eine Küche mit separatem Essbereich, ein Bad und diverse Flure aufteilen. Über das voll verglaste Wohnzimmer gelangen die Bewohner auf die sehr großzügige Sonnenterrasse und in den angelegten Garten. Eine Garage und ein paar Stellplätze sind direkt am Haus vorhanden.
Die Immobilie liegt in einer äußerst ruhigen Seitenstraße des südlichen Stadtteils "Gremmendorf/Angelmodde“. Das Ortszentrum von Gremmendorf bietet den Anwohnern eine Vielzahl von Einkaufsmöglichkeiten sowie Ärzte, Banken und Apotheken. Aufgrund der familienfreundlichen Wohnlage sind auch Kindergärten und Grundschulen bequem und zügig zu erreichen. In unmittelbarer Nähe des Wohnumfeldes liegen zudem viele Felder und Wälder, die gerade bei Spaziergängern, Freizeitsportlern und Tierbesitzern sehr beliebt sind. Die Münsteraner Innenstadt ist sowohl mit den öffentlichen Verkehrsmitteln, als auch mit dem PKW (ca. 6 KM) in wenigen Minuten zu erreichen.


Diese Immobilie ist bereits verkauft. Wenn Sie eine ähnliche Immobilie suchen, stöbern Sie gerne in unseren aktuellen Angeboten.