

















Diese vielseitig nutzbare Gewerbeeinheit wurde bislang als Büro und Fotostudio genutzt und bietet ideale Voraussetzungen für Unternehmen, die Wert auf Raumqualität, Funktionalität und Außenanbindung legen.
Die Einheit erstreckt sich über zwei Ebenen mit insgesamt ca. 330 m² Nutzfläche. Im Hochparterre stehen ca. 200 m² zur Verfügung, ergänzt durch ein direkt angebundenes Untergeschoss mit ca. 130 m² Lager-und Kellerräume.
Raumqualität und Ausstattung
Das Hochparterre überzeugt durch helle Räume und eine großzügige Deckenhöhe von ca. 2,98 Metern, die ein offenes und professionelles Arbeitsumfeld schaffen. Der ehemalige Fotostudio- beziehungsweise Konferenzbereich verfügt über eine außergewöhnliche Deckenhöhe von ca. 3,98 Metern und eignet sich ideal für Präsentationen, Schulungen, kreative Nutzungen oder repräsentative Kundenbereiche.
Die Ausstattung ist gepflegt und funktional. Akustikelemente sorgen für eine angenehme Raumakustik, der Vinylboden ist robust und pflegeleicht. Eine integrierte Küchenzeile mit Herd, Backofen, Spülmaschine und Kühlschrank ermöglicht eine komfortable Nutzung im Arbeitsalltag.
Untergeschoss und Nebenflächen
Das Untergeschoss ist direkt über das Erdgeschoss zugänglich und verfügt über drei separate Kellerräume. Zusätzlich ist ein Wasseranschluss vorhanden, was die Fläche auch für Lager, Technik oder produktionsnahe Nutzungen interessant macht.
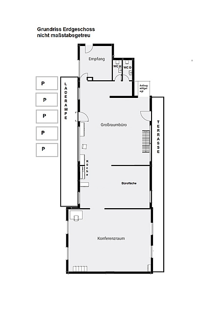
Außenflächen und Erschließung
Ein besonderes Merkmal dieses Objekts sind die fünf direkt am Gebäude gelegenen Stellplätze. Diese können zu jeweils 30 € monatlich zzgl. 19 % Umsatzsteuer angemietet werden. Auch die Mietpreise der Gewerbefläche verstehen sich zzgl. der gesetzlichen Umsatzsteuer.
Darüber hinaus steht eine Laderampe zur Verfügung, die eine komfortable Anlieferung und Logistik ermöglicht und die Fläche insbesondere für Unternehmen mit Warenverkehr deutlich aufwertet.
Nutzungsmöglichkeiten
Durch die Kombination aus hoher Deckenhöhe, guter Belichtung, funktionalem Grundriss und exzellenter Erreichbarkeit eignet sich die Fläche unter anderem für
* Büro- und Verwaltungsnutzung
* Fotostudio
* Agenturen und kreative Dienstleister
* Schulungs- und Konferenznutzung
* Showroom oder Studio
* Kombination aus Büro und Lager
Der Energieausweis ist beauftragt und wird bei Vorliegen nachgereicht.
Die angebotene Bürofläche befindet sich in einer äußerst zentralen Lage, ideal gelegen für Unternehmen, die Wert auf eine gute Erreichbarkeit legen. Die Immobilie liegt weniger als 1,5 Kilometer vom Bahnhof entfernt und kann auch mit kurzen Wegen zu der A43 und A1 dienen. Die Nähe zum Bahnhof, Stadtzentrum und der exzellenten Anbindung an den Individualverkehr macht die Lage besonders attraktiv für Geschäftsleute und Besucher. Die Umgebung bietet eine Vielzahl an Versorgungsmöglichkeiten wie Geschäften und Restaurants, aber auch Zugang zum öffentlichen Nahverkehr.
Für weitere Informationen oder zur Vereinbarung eines Besichtigungstermins stehe ich Ihnen gerne zur Verfügung.




Diese Immobilie ist bereits vermietet. Wenn Sie eine ähnliche Immobilie suchen, stöbern Sie gerne in unseren aktuellen Angeboten.