





Dieses architektonisch ansprechende Mehrfamilienhaus bietet mit seinen exklusiven Eigentumswohnungen Platz für Familien, Einzelpersonen und Paare. Neben seiner energetischen Hochwertigkeit, Energiekennwert 16,2 kWh/(m²*a) = A+, bietet es Ihnen lichtdurchflutete Wohnräume. Zu jeder Wohnung gehört jeweils eine Terrasse bzw. ein Balkon.
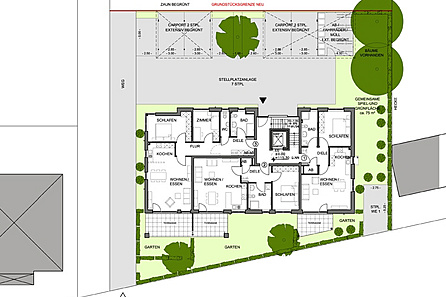
Die Raumaufteilung erkennen Sie mit den im Exposé dargestellten Grundrissen.
Zusätzlich kann ein Carport für (15.000,00 € Aufpreis) erworben werden. Es wird ein Fahrradhaus gebaut, welches im Carportpreis enthalten ist.
Alle Wohnungen entsprechen einem gehobenen Ausstattungsstandard. Ihnen stehen ein Personenaufzug sowie großzügige Terassen und Balkone zur Verfügung.
Im schönen Münsterland, mitten in den Baumbergen, hat sich die Stadt Billerbeck mit seinen 11.500 Einwohnern bis heute den typischen Charakter eines münsterländischen Städtchens bewahrt. Billerbeck ist mit dem Prädikat "Staatlich anerkannter Erholungsort" ausgezeichnet und nicht zuletzt wegen seiner hervorragenden Gastronomie weit über die Grenzen des Münsterlandes hinaus bekannt. Durch die Nähe zur BAB A1, A43 und der A31 kann die Lage als äußerst verkehrsgünstig bezeichnet werden. Sämtliche Einrichtungen des täglichen Bedarfs sowie Kindergärten, Sportanlagen und Schulen sind ebenfalls mühelos zu erreichen. Billerbeck hat ein stetiges Wachstum durch den Zuzug von jungen Familien. Wirtschaftlich ist Billerbeck gut aufgestellt. Neben weltweit agierenden Unternehmen finden Sie mittelständische Familienunternehmen und qualifizierte Handwerksbetriebe. Die Nähe zur FH in Steinfurt oder zur Uni in Münster trägt ebenfalls zu einer guten Wirtschaft bei.


Diese Immobilie ist bereits verkauft. Wenn Sie eine ähnliche Immobilie suchen, stöbern Sie gerne in unseren aktuellen Angeboten.