



Umhüllt ist das Haus mit einer modernen Holzaluminiumfassade, die mit ihrem klassischen schwarz auf der Aussenseite eine neue Eleganz in die sonst raue Hafenatmosphäre trägt; im Inneren dagegen verströmt die Holzoberfläche der raumhohen Fenster- und Glaselemente eine angenehme Wärme. Auf der Strassenseite wird das Haus über einen weiträumigen Vorplatz und durch ein großzügiges, offenes Treppenhaus erschlossen. Die Verteilung in den Etagen erfolgt mit einem transparenten Glasaufzug.
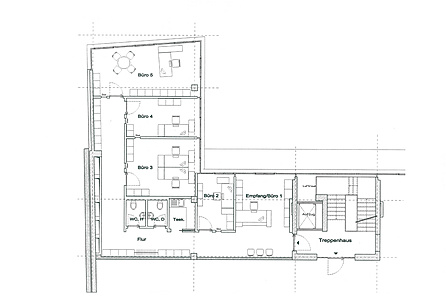
Die noch zur Verfügung stehende 131 m² große Fläche befindet sich im 2. OG und ist in Ihrer Einteilung völlig frei. Dabei zeigt sich die sehr nutzerfreundliche Felxibilität auch bei der Strukturierung der Büroräume mit Tiefen von 4,8 m bis zu 6,8 m. Die Breitenunterteilung im optimalen Büroachsmaß von ca. 1,35 m ermöglicht in sehr problemloser und wirtschaftlicher Weise die Erstellung von Standardzellen- und großzügige Mehrpersonenbüros.
Die bereits vorgerüsteten technischen Details wie z.B. die fensterbezogenen Einzelsteuerungen des außen liegenden Sonnenschutzes und der Hohlraumboden ermöglichen praktisch jeden gewünschte Raumgröße.
Parkplatzmöglichkeiten befinden sich unter dem Haus in einer zweigeschossigen, auch mit dem Aufzug erreichbaren Tiefgarage mit 60 Stellplätzen.
Einen besonderen Reiz in der Domstadt bietet der Münsteraner Hafen . Mit der zunehmenden Entwicklung des Kreativkais und der Neuerschließung des Mittelhafens etabliert sich dieser Standort nach und nach als einer der führeden Geschäftsadressen in Münster. Die umgebauten Speicherhäuser und die moderne Architektur, welche Restaurants, Büros und Kultur beherbergen, sorgen für ein abwechslungsreiches Angebot. Geschäfte des täglichen Bedarfs befinden sich in fußläufiger Entfernung und bilden eine gewachsene Infrastruktur.
Bushaltestellen in unmittelbarer Nähe und der etwa 850 m entfernt gelegene Hauptbahnhof bieten neben einer schnellen überregionalen Anbindung über die B51 an die Autobahn A1/A43 eine gute regionale und überregionale Verkehrsanbindung.
Diese Immobilie ist bereits vermietet. Wenn Sie eine ähnliche Immobilie suchen, stöbern Sie gerne in unseren aktuellen Angeboten.