





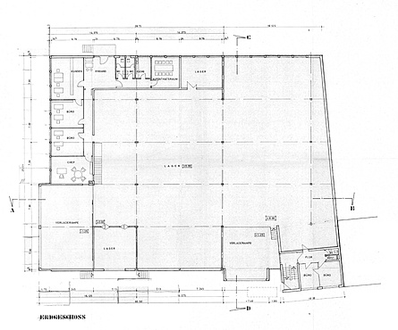
Die Logistikimmobilie besteht aus einer teilunterkellerten Hallenfläche (1.377 m²) und einer Bürofläche (276 m²) im Erdgeschoss. In einem zweigeschossigen Anbau mit separatem Eingang befindet sich im Erdgeschoss eine weitere Bürofläche (39 m²), zurzeit als Wohnung genutzt, und eine Betriebswohnung (70 m²) im Obergeschoss mit drei Zimmern, einer Küche, einem Bad und einem Flur.
Die Hallenfläche befindet sich mit Ausnahme der innenliegenden Ladezonen in Hochparterre (Rampenhöhe mit 1,10 Meter). Von den vier Ladezonen haben drei einen ebenerdigen Ladebereich mit entsprechenden Rolltoren in den Außenwänden. Von diesen drei Ladezonen erfolgt der Ladevorgang über eine 1,10 Meter hohe Verladerampe. Eine weitere Laderampe ohne Vorraum kann an der nördlichen Gebäudeseite direkt angefahren werden. Der Bürobereich (Lagerhalle) im Erdgeschoss wird von außen über eine Treppe erschlossen, ist jedoch auch vom Lager zugängig.
KAUFPREISERWARTUNG
GRUNDSTÜCK / GEBÄUDE : € 572.000,00
PHOTOVOLTAIKANLAGE : € 264.000,00
GESAMTWERT : € 836.000,00
Halle:
- Stahlbetonskelettbau mit verblendetem Außenmauerwerk und geneigten Satteldächern
- Hallenhöhe ca. 3,00 m bis 4,30 m
- Andienung über vier Tore mit Verladerampe, davon ein Tor in der Außenwand und drei Tore mit einer vorgelagerten ebenerdigen Überdachung
- 1,10 m hohe Verladerampe
- zwei Tore mit Ladevorraum zur Ostseite (ca. 3,50 m hoch / 6,50 m breit)
- ein Tor mit Ladevorraum zur Nordseite (ca. 3,50 m hoch / 6,20 m breit)
- ein Tor zur Nordseite ohne Ladevorraum (ca. 3,50 breit)
- Außenanlage teilweise befestigt mit PKW/LKW-Stellflächen
- Dachhaut auf Trapezblechen mit Stahltrapezprofil auf vorhandenen Holzpfetten sowie Bitumenschweißbahnen als Dampfsperre, Wärmedämmung 120 mm und Endabdichtung 1-lagig mit TEB-Jokaplan
- Kellerhöhe 2,30 m
- Bodenbelag aus Hartstoffboden mit einer voraussichtlichen Belastung größer gleich 1.000 kg, vorbehaltlich der statischen Überprüfung
- Photovoltaikanlage mit 112 KW (Vertragsdauer: 26.11.2009 - 26.11.2029)
Büro:
- Stahlbetonskelettbau mit ausgefachtem Blend-Mauerwerk
- abgetrennte Büroräume in Leichtbauweise mit Glaselementen
- Fensterbankkabelkanäle
- elektrisch bedienbare Rollläden
- getrennte WC-Einheiten (D/H)
- Fußboden aus PVC und Fliesen
- Kunstofffenster mit Isolierverglasung
Betriebswohnung:
- 3 Zimmer, Küche, Bad, Flur mit ca. 70 m² Wohnfläche (vermietet)






Diese Immobilie ist bereits verkauft. Wenn Sie eine ähnliche Immobilie suchen, stöbern Sie gerne in unseren aktuellen Angeboten.