

Gepflegtes Geschäftshaus!
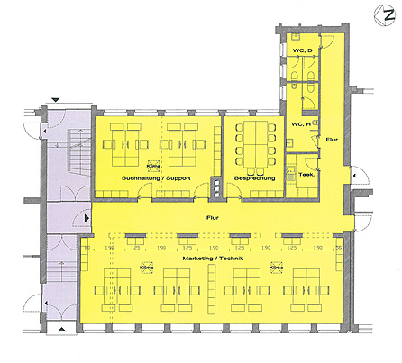
Es handelt sich hier um eine Büroeinheit im Erdgeschoss (Hochparterre) eines Geschäftshauses mit insgesamt drei Etagen. Derzeit ist diese Büroeinheit insgesamt ca. 202 m² groß und kann in Teilen (Teil 1: Büro 1+2+3 , Teil 2: Büro 4) angemietet werden, wobei Verkehrsflächen und Sozialräume wie Flur, WC-Anlagen (Damen-/Herren-WC) und Küche im Rahmen einer gemeinschaftlichen Nutzung bereit gestellt und in die jeweiligen Teilflächen anteilig mit eingerechnet sind. Der vorhandene Grundriss ist flexibel teilbar und kann bei Bedarf entsprechend den Wünschen des Mieters angepasst werden (siehe Beispielgrundriss). Stellplätze können auf Anfrage im hinteren Hofbereich angemietet werden. Ansonsten befinden sich auch öffentliche Parkplätze u.a. direkt vor der Haustür.
Vorhandene Ausstattung:
Zusätzliche Vermieterleistung bei langjähriger Anmietung:
Zentrale Lage!
Diese Gewerbeimmobilie befindet sich in zentraler, verkehrsgünstiger und werbewirksamer Lage zwischen Innenstadt und Kreativkai (Münsteraner Hafen), nähe Hafenstraße. Herausragende Verkehrsanbindungen sowie urbanes Leben und Wohnen prägen dieses Viertel. Das sehr gute ÖPNV-Angebot wird ergänzt durch ein umfangreiches Stellplatzangebot für Autos und Fahrräder in unmittelbarer Nähe. Als junges Quartier mit zunehmender Aufenthaltsqualität bietet das Bahnhofsviertel ein attraktives Arbeitsumfeld.


Diese Immobilie ist bereits vermietet. Wenn Sie eine ähnliche Immobilie suchen, stöbern Sie gerne in unseren aktuellen Angeboten.