

Die Hauptfläche befindet sich werbewirksam im Hochparterre eines Wohn- und Geschäftshauses mit insgesamt vier Geschossen. Die repräsentative Lage in zweiter Reihe zum Hafen-Kreativkai ist eine attraktive Geschäftsadresse.
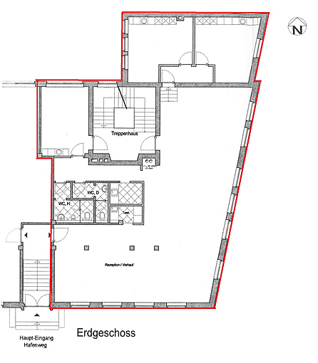
Über eine Freitreppe gelangt man in das Treppenhaus, das ausschließlich die beiden Erdgeschoss-Nutzungseinheiten erschließt.
Am äußeren Treppenaufgang befindet sich eine über eine Zeitschaltuhr beleuchete Werbeanlage.
Die Räume werden seit über zehn Jahren von einem exklusiven Friseur- und Kosmetikstudio genutzt. Eine Anpassung in Verkaufs-, Büro- und Praxisflächen ist möglich. Moderne Klimageräte sind bereits vorhanden. Vier Parkplätze befinden sich unmittelbar vor der Etage, weitere können in einer gegenüber liegenden Tiefgarage angemietet werden.
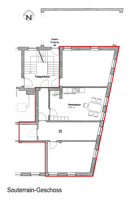
Das Untergeschoss mit einer lichten Höhe von 2,30 m wird als Büro- und Personalraum mit entsprechender Sanitäranlage genutzt. Der Fußboden ist voll wärmegedämmt.
Ein Energieausweis ist in Bearbeitung.
Kaltmietpreise:
Im Erdgeschoss (206 m²): 12,50 €/m², im Untergeschoss (103 m²): 7,50 €/m².
Wir hoffen, Ihr Interesse geweckt zu haben und freuen uns, Sie bei einer persönlichen Besichtigung über weitere Details informieren zu können.
Einen besonderen Reiz in der Domstadt bietet der Münsteraner Hafen. Mit der zunehmenden Entwicklung des Kreativkais und der Neuerschließung des Mittelhafens hat sich dieser Standort als eine der führenden Geschäftsadressen in Münster etabliert. Die umgebauten Speicherhäuser und die moderne Architektur mit Restaurants, Büros und Kultur sorgen für ein abwechslungsreiches Angebot. Geschäfte des täglichen Bedarfs befinden sich in fußläufiger Entfernung und bilden eine gewachsene Infrastruktur.
Bushaltestellen in unmittelbarer Nähe und der etwa 850 m entfernt gelegene Hauptbahnhof bieten neben einer schnellen Anbindung über die B51 an die Autobahn A1/A43 eine gute regionale und überregionale Verkehrsanbindung.










Diese Immobilie ist bereits vermietet. Wenn Sie eine ähnliche Immobilie suchen, stöbern Sie gerne in unseren aktuellen Angeboten.