







Dieses Wohn- und Geschäftshaus liegt in besonderer Lage, unmittelbar an der Stiftskirche in Nottuln. In direkter Nähe steht das Gebäude der Kurie, der Familie von Droste zu Senden von 1749, eines der historischen Häuser im Ortskern.
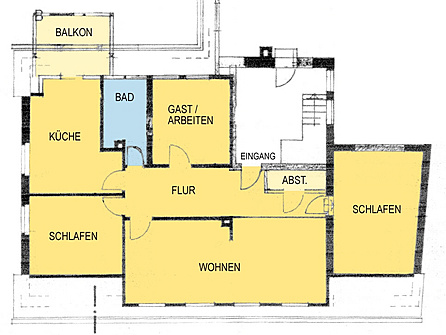
Das Haus umfasst im Erdgeschoss ein Ladenlokal mit Neben- und Lagerräumen. Abgewandt von der Kirchstraße befindet sich ein Praxisbereich, dieser ist vermietet und angesiedelt an eine Arztpraxis im Nachbarhaus. Im Obergeschoss und Dachgeschoss sind 4 Wohnungen mit unterschiedlicher Größe vorhanden, von 74 - 115 m². Zwei der Wohnungen mit Balkon und Blick zur Stiftskirche. Die Wohnungen sind ordentlich vermietet. Der Laden wird aktuell von einem Bioladen belegt.
Besichtigen Sie mit uns dieses besondere Immobilienangebot. Gerne vereinbaren wir einen Termin mit Ihnen.
Angaben zur EnEV 2014:
Energiekennzahl 110
Energieklasse D
Bedarfsausweis ist durch den Eigentümer beauftragt
Öl-Heizung
Baujahr 1959
Dieses Wohn- und Geschäftshaus wurde in Nottuln auf einem 947 m² großen Kaufgrundstück in bester Lage errichtet. Sie wohnen in Randlage.
Die Gemeinde Nottuln befindet sich ca. 25 km nordwestlich von Münster und ist sehr gut zu erreichen. Nottuln besteht aus vier Gemeinden, die Ortsteile Appelhülsen, Darup und Schapdetten liegen um Nottuln angesiedelt.
Die B64 und die BAB A43 sind in direkter Nähe.
Nottuln ist mit seinem historischen Ortskern und der Lage mitten in den Baumbergen eine sehr lebenswerte Gemeinde mit ca. 20.000 Einwohnern. Einige Filialisten haben sich hier niedergelassen und ziehen Kunden aus dem Umland in die Gemeinde. Die Bewohner Nottuln's haben zum erheblichen Teil Ihren Arbeitsplatz auch in Münster. Dies liegt auch an der guten Anbindung nach Münster über die A43. Mit der Lage in den Baumbergen gehört Nottuln zu den drei Baumbergegemeinden und hat damit bereits eine eigene Attraktivität.
Weiterführende Schulen sowie Einkaufsmöglichkeiten für Ihren täglichen Bedarf, Freibad und verschiedene allgemeine Ärzte und Fachärzte sind vorhanden.






Diese Immobilie ist bereits verkauft. Wenn Sie eine ähnliche Immobilie suchen, stöbern Sie gerne in unseren aktuellen Angeboten.