





Dieses architektonisch ansprechende Mehrfamilienhaus bietet mit seinen exklusiven Eigentumswohnungen Platz für Familien, Einzelpersonen und Paare. Neben seiner energetischen Hochwertigkeit, Energiekennwert 16,2 kWh/(m²*a) = A+, bietet es Ihnen lichtdurchflutete Wohnräume. Zu jeder Wohnung gehört jeweils eine Terrasse bzw. ein Balkon. Die Dachwohnung Nr. 8 hat eine ca. 30 m² große Dachterrasse.
Änderungen an der Raumaufteilung können nach Absprache vorgenommen werden.
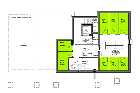
Dieses Immobilienangebot steht beispielhaft für die angebotenen Wohnungen, weiteres im folgenden:
Die Wohnungen teilen sich in folgenden Größen auf:
EG Wohneinheit 3: 94,54 m² Wohnfläche, 250.531,00 € Kaufpreis
EG Wohneinheit 4: 66,58 m² Wohnfläche, 176.437,00 € Kaufpreis
EG Wohneinheit 6: 95,17 m² Wohnfläche, Kaufpreis / verkauft
DG Wohneinheit 7: 60,46 m² Wohnfläche, Kaufpreis / verkauft
Zusätzlich können ein Carport (15.000,00 € Aufpreis) und/oder ein Stellplatz für (10.000,00 € Aufpreis) erworben werden. Es wird ein Fahrradhaus gebaut, welches im Carport- oder Stellplatzpreisen enthalten ist.
Zu einer Förderung über die KFW-Bank beraten wir Sie gerne. Die Wohnungen werden als KFW 70 Wohnungen gefördert, weiteres siehe auch www.kfw.de/Foerderung
Alle Wohnungen entsprechen einem gehobenen Ausstattungsstandard. Ihnen stehen ein Personenaufzug sowie großzügige Terassen und Balkone zur Verfügung. Weiter wird ein Parkettboden verbaut.
Im schönen Münsterland, mitten in den Baumbergen, hat sich die Stadt Billerbeck mit seinen 11.500 Einwohnern bis heute den typischen Charakter eines münsterländischen Städtchens bewahrt. Billerbeck ist mit dem Prädikat "Staatlich anerkannter Erholungsort" ausgezeichnet und nicht zuletzt wegen seiner hervorragenden Gastronomie weit über die Grenzen des Münsterlandes hinaus bekannt. Durch die Nähe zur BAB A1, A43 und der A31 kann die Lage als äußerst verkehrsgünstig bezeichnet werden. Sämtliche Einrichtungen des täglichen Bedarfs sowie Kindergärten, Sportanlagen und Schulen sind ebenfalls mühelos zu erreichen. Billerbeck hat ein stetiges Wachstum durch den Zuzug von jungen Familien. Wirtschaftlich ist Billerbeck gut aufgestellt. Neben weltweit agierenden Unternehmen finden Sie mittelständische Familienunternehmen und qualifizierte Handwerksbetriebe. Die Nähe zur FH in Steinfurt oder zur Uni in Münster trägt ebenfalls zu einer guten Wirtschaft bei.










Diese Immobilie ist bereits verkauft. Wenn Sie eine ähnliche Immobilie suchen, stöbern Sie gerne in unseren aktuellen Angeboten.